Features
- The quality of insulation and robustness of the structure guarantee thermal efficiency, reliability and durability of the ovens.
- The system of temperature control is managed by a PLC, whichreceives readings from a recording thermocouple, an adjustmentthermocouple, a fume measurement thermocouple and a safetythermocouple.
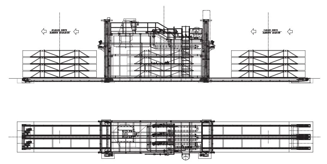
- Movement of the baskets in the oven, is entrusted to a system ofchains for the transport or to a carriage moving on rails.The mechanisation of the baskets stacking system by means ofan automatic crane permits to reduce the use of manpower andconsequently the risks connected to it.
- The special design of the baskets permits the adjustment of thedistance between the layers of profiles and permits a greater uniformity in the treatment thanks to an improved air circulation.
Tehcncial data
| Parameter | Value | Unit |
| Chamber Dimensions (useful dimensions) | ||
| Width | 2.67 | mm |
| Height | 3 | mm |
| Length | 10.9 | mm |
| Total number of baskets | 8 | |
| Disposition of baskets | 1x2x4 | (LxWxH) |
| Aluminium Capacity (each cycle) | ||
| Max | 8 | kg |
| Average | 6.4 | kg |
| Max Profile Length | 0 | mm |
| Working Cycle Temperature | 185 | °C |
| Max Admitted Temperature | 230 | °C |
| Fuel | Natural Gas | |
| Average Calorific Power | 200 | Kcal/Nm³ |
| Gas Consumption (each cycle) | 80+5% | Nm³ |
| Heating Mode | Radiant Pipes | |
| Number of Burners | 3 | |
| Thermal Installed Power (approx.) | 0 | Kcal/h |
| Air Circulating Fans | 1 | |
| Delivery Capacity Each Fan | 0 | m³/h |
| Temperature Accuracy (holding phase) | ± 5 | °C |
Cycle time to reach 185^C 6h approx with bars of 80x80mm and 8000 Kg of Aluminium.








